Vendita 460.000€ - Appartamento
QUARTO VIALE QUARTARA– Signorili vani 7,5 con balconate, box e cantina.
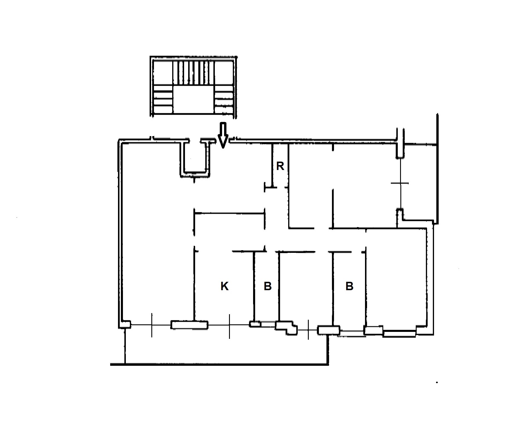
Proponiamo in esclusiva signorili e ampi vani 7,5 di mq.148 composti da ingresso arredabile, doppio soggiorno, cucina abitabile, disimpegni, 2 camere matrimoniali, 1 camera media, bagno padronale con vasca, bagno di servizio con doccia, ripostiglio e due balconate vivibili con gradevole affaccio sud-est-ovest nel verde, scorcio mare e sul circondario. Completano la proprietà la cantina al piano terra ed un box di mq.17 (h. ingresso mt.1,80)
In signorile palazzina fine anni 50 con ascensore, l’appartamento è posto al piano alto, gode di eleganti e ordinate finiture, con pavimenti in palladiana, serramenti a taglio termico, porte in massello e portoncino blindato: l’immobile necessita di riqualificazione generale nella zona dei servizi e degli impianti. Ottima la luminosità grazie alla felice esposizione tutta esterna di tutti i vani.
Lo stabile rinnovato nelle parti comuni, è posto nella parte alta di Viale Quartara ed è dotato di distacco laterale con alcuni posti auto condominiali liberi.
IMPIANTI E SERVIZI: Riscaldamento e acqua centralizzati, impianto elettrico rispondente, condizionamento.
Rif 007A
Tel. 010 29.26. 312.
Dettagli
- Dati Tecnici: Abitazione mq 148, Cat A/2, RC € 1.887,98
- Spese Amministrazione: € 250/mese tutto compreso, salvo conguaglio
- Ape: classe C - 96,51
- Prezzo: € 460.000











































