Vendita 780.000€ - Appartamento
CENTRO, GROPALLO ADIACENTE Prestigiosi 12,5 vani di 250 mq + balconi. Piano alto, signorile, tripla esposizione aperta. Più due posti auto e cantina.
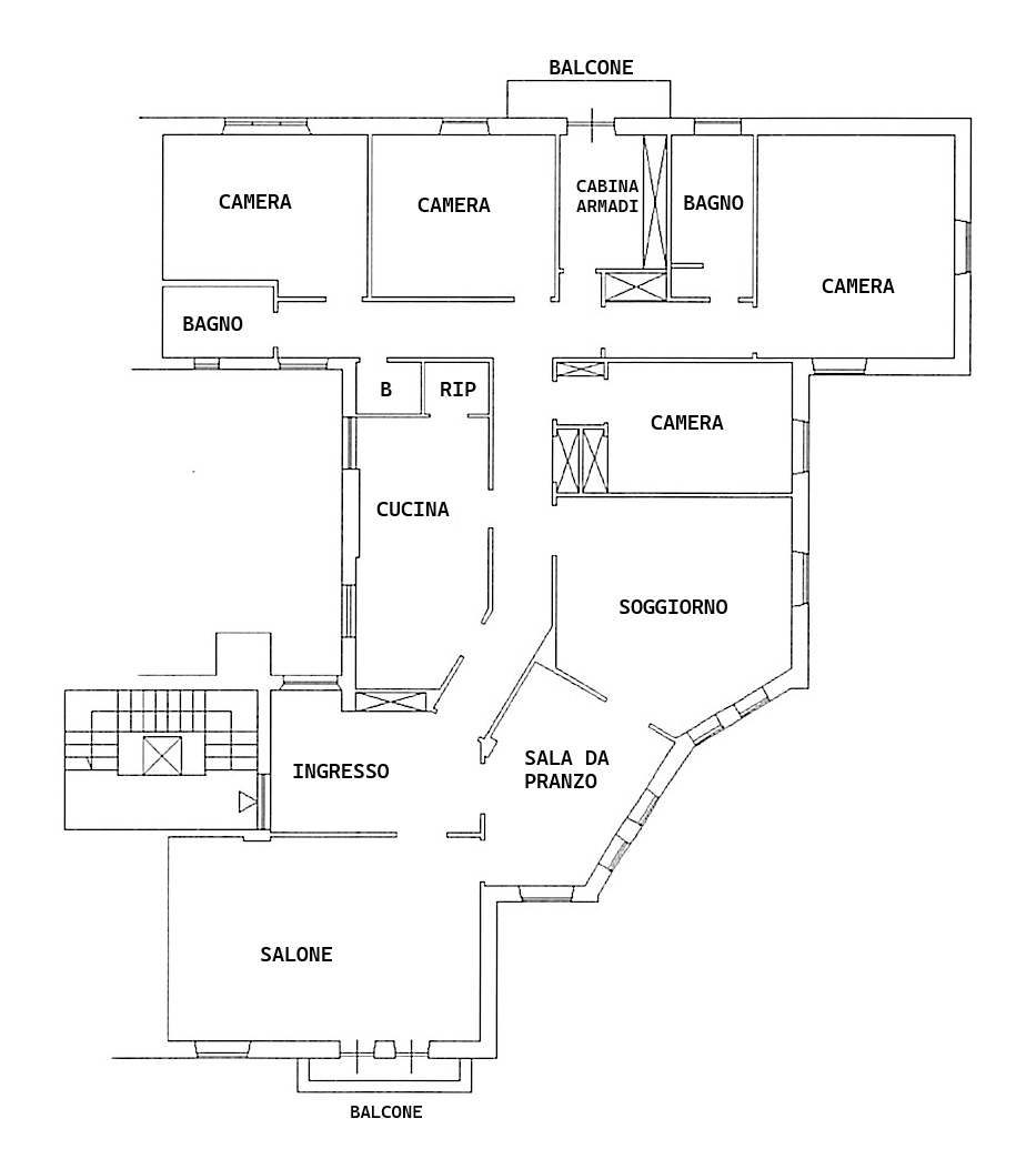
INTERNI: Ampio ingresso finestrato aperto verso salone doppio, sala da pranzo e magnifico studio/biblioteca con librerie d’epoca. L’abitazione prosegue con la zona servizi che comprende una grande cucina con attiguo funzionale ripostiglio, mentre la zona notte offre 4 camere, una camera armadi finestrata, la lavanderia e due servizi oltre a varie armadiature a muro.
Le rifiniture d’epoca sono molto importanti e sontuose, caratterizzate da stucchi, marmi e parquet originali. L’immobile si presenta in buono stato conservativo, con una piacevole atmosfera d’altri tempi.
ACCESSORI:
- Balcone con vista aperta
- Balcone di servizio,
- Comoda Cantina piano portico
- Due posteggi scoperti di proprietà prospicenti l’edificio.
IMPIANTI: Ascensore – Riscaldamento centrale – Acqua calda autonoma – Parziale climatizzazione.
ESPOSIZIONE: Piano terzo, molto alto e tranquillo rispetto alla strada principale. Triesposizione prevalente a Sud – Est, soleggiata e laterale verso giardini interni.
STABILE: Signorile/Monumentale del 1930 in ottime condizioni, dotato di servoscala, quindi No Barriere architettoniche, comodo piazzale antistante l’edificio per carico e scarico. Ubicato in viale privato esclusivo, protetto da sbarra d’accesso.
Dettagli
- Dati Tecnici: Abitazione Mq 250 + Balconi, cantina e posti auto
- Dati Catastali: Cat A/1 LUSSO – RC 4.090,34, Posti auto RC 36,36, Cantina C/2 RC 19,83
- Spese Amministrazione: € 3.500,00 Annui compreso di riscaldamento e acqua
- Ape: Classe F - KWh mc 132,38
- Prezzo: € 780.000





































